Загальна інформація
18 січня 2010
Більше 16 років ми орендували зали в нашому місті за найвищими розцінками, проводячи Богослужіння і при морозах взимку, і при нестерпній спеці влітку. Плативши цю ціну, ми продовжували вірити Богові, і в 1995 році Він сказав нам: «Будуйтеся!».
З того часу ми пройшлі ще багато випробувань, різних гонінь, зустрічаючи непорозуміння з боку чиновників, але разом з тим ми завжди бачили Божу допомогу і підтримку.
У 2005 році ми змогли викупити будівлю колишнього кінотеатру, яка потребувала капітального ремонту і реконструкції, і також паралельно шукали ділянку під будівництво. І те й інше, звичайно, спричинило великі витрати. Силами нашої церкви проводиться велика робота в Донецьку і по всій Україні, і ми вирішили не зупинятися, але продовжувати вірити Богу про фінанси для будівництва церкви.
Бог дав нам ідею про партнерську програму, яка дозволила кожному парафіянину церкви стати активним учасником будівництва Дому Божого. Спільними зусиллями, об'єднавши наші фінанси і молитви, ми змогли зробити реконструкцію будівлі колишнього кінотеатру, де сьогодні проводимо Богослужіння і заняття Біблійного інституту, а також почати роботи з будівництва основної будівлі церкви.
Ділянка землі для будівництва площею в 2,6 га знаходиться в центральній частині м.Донецька. Поруч проходить центральна автомагістраль міста, недалеко знаходиться автовокзал, залізничний вокзал і аеропорт.
Ця будівля буде використовуватись не лише для потреб помісної церкви, але також для проведення всеукраїнських і обласних конференцій усього об'єднання Української Християнської Євангельської Церкви.

Ділянка землі для будівництва

Попередній проект будівлі церкви
На початку всієї роботи розглядалось багато варіантів будівництва, але спорудження культових будівель із металоконструкцій на той час в Україні не практикувалося.
На сьогодні ми маємо цю можливість, і завдяки новій концепції будівництва з металоконструкцій, ми маємо наступні переваги:
- значне скорочення термінів будівництва
- значне зниження вартості будівництва
- максимально вигідне використання природного рельєфу земельної ділянки
- унікальну можливість поетапного будівництва
ПОЕТАПНЕ БУДІВНИЦТВО
I ЧЕРГА
БУДІВНИЦТВО ОСНОВНОЇ БУДІВЛІ ЦЕРКВИ

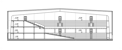
1.1. Основний зал і центральна частина трибуни:

Спочатку ми будуємо основний зал і центральну частину трибуни, під якою при мінімальних фінансових вкладеннях ми розмістимо обов'язковий мінімум технічних приміщень (коридори, гардероби, туалети, медпункти і так далі), без яких будівлю не можна ввести в експлуатацію. Завдяки унікальній концепції всі підтрибунні простори будуть світлими і просторими, з високими стелями.
1.2. Додавання бокових трибун:
.jpg)
Потім ми добудовуємо бокові трибуни (також розраховані на достатню кількість місць), під якими можна розташувати кафетерії, кімнати матері та дитини, класи недільної школи, операторські кімнати тощоі.
1.3. Додавання балконів:

Балкони ми можемо добудувати у будь-який час - через 5, 10, 15 років, коли буде можливість і необхідність в цьому. При подібній концепції ця будівля буде як дуже економічною, так і вмісною: враховуючи партер, велику трибуну, бокові трибуни і балкони, у ньому буде достатня кількість місць. Завдяки технології металоконструкцій, ми зможемо будувати все поступово, але при цьому починати використовувати будівлю вже у 2012 році.
II ЧЕРГА
БУДІВНИЦТВО ПАРКУВАЛЬНОЇ СТОЯНКИ

На другому етапі будівництва на території будівлі церкви буде збудовано паркувальну стоянку на 1000 автомобілів.
III ЧЕРГА
БУДІВЛЯ ДЛЯ ОФІСІВ
![]()

У цій будівлі розташовуватимуться всілякі офіси і кабінети для різних напрямків і служінь церкви, яких сьогодні більше сорока. Також тут знаходитимуться конференц-зали, міні-готель, ресторан, кафе, фітнес-клуб тощо.
Весь цей комплекс стане благословенням для багатьох парафіян, які зможуть почувати себе зручно та комфортно, приходячи до Церкви. Нова будівля церкви буде досить місткою для проведення всеукраїнських і обласних конференцій, а також інших заходів Української Християнської Євангельської Церкви. Також ця будівля буде потужною місіонерською базою для підготовки безлічі служителів і виконання покликання нашої церкви – нести Євангеліє по всьому світу.
Бог сказав, що Україна буде хлібною і духовною житницею для багатьох народів, і ми мріємо побачити виконання цього слова!
Будівництво Дому Божого - це вже початок виконання нашого місіонерського покликання.
Запрошуємо вас приєднатися до великої команди учасників партнерської програми будівництва.
Беручи участь у Божій справі, ми робимо великий вклад в майбутнє наших дітей і нашої країни.
Нехай Господь благословить вас!








